Фрунзе 5 офис 202/1
Перейти к навигации
Перейти к поиску

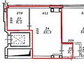
| адрес | Фрунзе 5 |
|---|---|
| этаж | 2 |
| площадь | 32,932,9 м² <br /> |
| офис свободен | Нет |
| арендная ставка | 13001300 руб./м² <br /> |
| арендная плата | 42 77042770 руб. <br /> |
Офис из двух кабинетов, расположен рядом с лифтом и центральной лестницей. Окна выходят во двор
