Обсуждение:Кропоткина 92/2
Перейти к навигации
Перейти к поиску
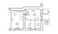
Универсальное помещение 49 м² 6 500 000 руб.
[править]| Общая площадь | 49,6 м² |
|---|---|
| Этаж | 1 |
| Мощность электросети | 15 кВт |
| Отдельный вход | есть
|
| Назначение помещения | магазин, выставочный зал |
Объект расположен в густонаселенном жилом массиве в районе м. Гагаринская. Срочная продажа. Торг.