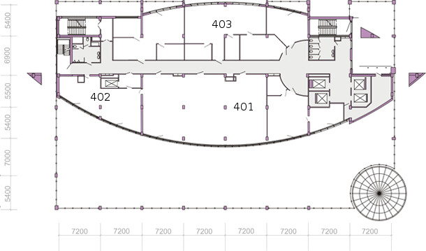
Красноярская 35 (4 этаж)
Материал из ultracity
Перейти к навигации
Перейти к поиску
-1
1
2
3
4
5
6
7
8
9
10
11
12
13
14
15
16
17
18
Организации
Офис
Организация
Описание
403
402
401
Организация
Описание
Генеральное консульство Федеративной Республики Германия в г. Новосибирске
Навигация
Персональные инструменты
Вы не представились системе
Обсуждение
Тёмная тема
Вклад
Создать учётную запись
Войти
Пространства имён
Статья
Обсуждение
русский
Просмотры
Читать
Править
История
Ещё
Обновить
Поиск
Навигация
Заглавная страница
Свежие правки
Новосибирск
Недвижимость
Коммерческая
Инструменты
Ссылки сюда
Связанные правки
Версия для печати
Постоянная ссылка
Сведения о странице
Узнать свойства