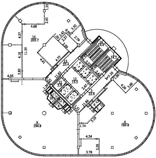
Кобра (14 этаж)
Материал из ultracity
Перейти к навигации
Перейти к поиску
Кобра
-1
1
2
3
4
5
6
7
8
9
10
11
12
13
14
15
16
17
18
19
20
21
22
23
24
25
Общая площадь этажа 663 м²
Аренда
Организации
Офис
Организация
Описание
14ABCDEF
Нск-проект
Навигация
Персональные инструменты
Вы не представились системе
Обсуждение
Тёмная тема
Вклад
Создать учётную запись
Войти
Пространства имён
Статья
Обсуждение
русский
Просмотры
Читать
Править
История
Ещё
Обновить
Поиск
Навигация
Заглавная страница
Свежие правки
Новосибирск
Недвижимость
Коммерческая
Инструменты
Ссылки сюда
Связанные правки
Версия для печати
Постоянная ссылка
Сведения о странице
Узнать свойства