Серия I-335

Материал из ultracity
(перенаправлено с «I-335»)
Перейти к навигации Перейти к поиску
Жилой дом серии I-335 (Комсомольский проспект 13)

Серия I-335 (1-335) Наиболее часто встречающаяся по всему бывшему СССР серия панельных 5-этажных жилых домов. В виде отдельных вкраплений встречаются даже в Москве. Первый дом этой серии был построен в Череповце. Наибольшее количество домов этой серии было построено в Санкт-Петербурге, где их выпускал Полюстровский ДСК. На данный момент доля эксплуатируемых домов по России самая большая в Омске — 170 домов серии I-335ПК с неполным каркасом (более 2 % всего объёма этой серии в стране).

К домам данной серии относятся так называемые «облегченные» пятиэтажки с утепленными прослойкой из минваты наружными стенами. Фасады домов данной серии отделаны мелкой керамической плиткой (в основном, в сине-голубых тонах). Это делает их значительно более привлекательными внешне, но внутри такой же минимализм, как в любой хрущевке - планировки квартир схожи с серией I-507. Здесь также есть балконы и довольно большие кладовки, однако в этой серии санузлы во всех квартирах смежные. Достаточно быстро выяснилось, что для климатических условий Москвы и Питера, легкая «триста тридцать пятая» серия домов не годна, поэтому начавшееся в 1959 году производство было в 1966 году приостановлено.

Серия была признана самой неудачной из всех серий жилых домов, разработанных при Хрущёве. При этом, как это ни странно, они не попали в список домов, сносимых в Москве в первую очередь. Дома этой серии возводились с 1958 года по 1966 год, после чего перешли к строительству модернизированных серий I-335К, I-335А, I-335АК и I-335Д, которые производились вплоть до конца 1980-х гг. В пределах Москвы про наличие домов усовершенствованной серии I-335 достоверно не известно.

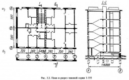
Внешнее отличие серии I-335 от других серий в Москве — широкие окна (двухстворчатые окна выглядят квадратными), железная 4-х-скатная крыша и удлинённые окна почти во всю высоту панели на лестничных клетках. Торцевые стены состоят из 4-х панелей с окнами на крайних. Обычно в одном из торцов дома имеется внешняя пожарная лестница. В другой модификации, в том числе которую строил Полюстровский ДСК (она встречается и в Московской области) может быть плоская крыша вообще без чердака. На площадке по 4 квартиры.

Квартиры 1-2-3-комнатные, высота потолков — 2,55 м. Центральная комната проходная. Санузел совмещённый. Водо- и теплоснабжение централизованное.

Лифт и мусоропровод отсутствуют.

На основе модернизированной серии возводились также дома в 7 и 9 этажей.

В настоящее время реконструируются.

C использованием применявшихся при строительстве таких домов панелей возводились также детские сады серии I-335А-211 (существовало два варианта — одноэтажный на 140 детей и двухэтажный на 280)


Описание

[править]

Эта серия домов была разработана для массового строительства в 1959 г. С тех пор она претерпела целый ряд существенных конструктивных изменений.

Первоначально за основу была взята схема с так называемым неполным каркасом, т. е. с внутренним каркасом и несущими панелями наружных стен длиной 2,6 и 3,2 м. Внутренний каркас состоял из железобе­тонных колонн высотой на этаж, установленных по продольной оси здания с шагом, равным размеру комнат, и прогонов, опирающихся на колонны и панели наружных стен. По прогонам укладывались перекрытия из плоских железобетонных плит толщиной 10 см.

Достоинством схемы неполного каркаса являлось использование несущей способности наружных стеновых панелей. Характерной, особенностью этой серии крупнопанельных домов было применение в качестве несущих продольных стен двухслойных панелей вместо однослойных.

Первоначально предполагалось, что двухслойные панели, состоящие из тонкостенной железобетонной ребристой плиты и слоя неавтоклавного пенобетона, заменят дефицитные теплоизоляционные материалы. Однако, как показала практика эксплуатации зданий, неавтоклавный пенобетон оказался малопригодным из-за низкой механической прочности, слабого сцепления с внутренней поверхностью железобетонной ребристой панели и большой гигроскопичности. На панелях появились усадочные трещины, отслоения и разрушения. Но самым существенным недостатком оказалось ненадежное опирание прогонов на наружные двухслойные стеновые панели, поскольку в этих местах образовывались мостики холода, способствовавшие коррозии металлических закладных элементов сварного соединения. Следует отметить, что в однослойных панелях никаких признаков коррозии металлических закладных элементов в местах опирания прогонов не наблюдалось.

После обследования многих эксплуатируемых домов серии I-335 в различных районах страны решено было отказаться от схемы неполного каркаса и производить опирание прогонов на специальные пристенные колонны (серия I-335A). Таким образом, новая серия I-335А стала каркасно-панельной.

В новом варианте серия I-335 лишилась своего существенного достоинства в отношении использования не­сущей способности наружных стеновых панелей. Усложнился монтаж дома из-за увеличения числа колонн со ПО (для 100-квартирного дома) до 360, увеличилась длина сварных швов. Кроме того, было установлено, что для крупнопанельных домов до 9 и даже 12 этажей каркасные схемы являются менее экономичными, чем бескаркасные.Другой характерный пример относился к широко распространенным в 60-х годах крупнопанельным жилым домам (серии К-7 конструкции В. П. Лагутенко). Эти дома по многим конструктивным характеристикам казались весьма прогрессивными. Основными ее несущими элементами являлись железобетонные тонкостенные перегородки (балки-стенки), которые объединяли в себе сразу три конструкции: во-первых — это балки, несущие перекрытия; они же перегородки, отделяющие помещение от помещения, и, наконец, колонна, так как через утолщения стенки, образующие колонны на торцах пере­городок, передаются сверху до низу все нагрузки. В этих условиях балка-стенка работала только на местную нагрузку е пределах своего этажа, передавая давление на концы, т. е. на вертикальные ребра. По ним вся нагрузка передавалась на фундаментные подушки через опорные короткие фундаментные стойки (колонны). Таким образом, основным массивным элементом дома была железобетонная перегородка, совмещавшая в себе три конструктивных элемента дома. В этих домах нулевой цикл исключался. Оставались к выполнению: рытье траншей с откосами и установка через 2,8 и 3,6 м вдоль наружных стен корпуса и по его продольным осям сборных железобетонных стоек с фундаментными подушками.Важным конструктивным элементом дома являлось перекрытие. Известно, что из общего расхода железобетона на дом 60% идет на перекрытие. Известно также, что в монолитных ребристых железобетонных перекрытиях приведенная толщина (плита совместно с балками) составляет 10 см. В многопустотных настилах с овальными пустотами приведенная толщина 10 см, а с круглыми пустотами 12 см. Таким образом, в отношении уменьшения расхода железобетона на перекрытие сборный железобетон прогресса не внес. Кроме того, такая приведенная толщина необходима исходя из нагрузки 75 МПа, общепринятой для междуэтажных перекрытий в жилых домах. Возник вопрос: правильно ли исходить из нагрузки 75 МПа на перекрытие, когда полезная для жилых зданий нагрузка составляет всего 15 МПа? Однако этот дополнительный вес необходим для того, чтобы обеспечить необходимую звукоизоляцию (путем засыпок и перегородок). Отсюда возникла идея: рассматривать перекрытие как совокупность двух элементов — пола и потолка. Для пола была создана тонкостенная ребристая панель на комнату, а для потолка — панель из легковесного материала. Таким образом, пол и потолок получились раздельными между собой, и об­разовавшаяся таким образом воздушная прослойка должна была, по мысли автора проекта, полностью удовлетворить требования в отношении обеспечения звукоизоляции. Дополнительная «бесполезная» нагрузка с пола таким образом была снята. В целом конструкция получилась, как казалось на первый взгляд, весьма целесообразной со всех технико-экономических точек зрения. Однако опыт строительства и эксплуатации многих таких домов выявил следующее:

  • звукоизолирующая способность межквартирных и межкомнатных перегородок — низкая;
  • звукоизоляция междуэтажных перекрытий, несмотря на раздельность, осталась неудовлетворительной из-за того, что в перекрытии имелось восемь отверстий, через которые пропускались скобы захватов при монтаже, а заделка этих отверстий крайне усложняла отделочные работы и снижала звукоизоляцию;
  • поскольку вес 1 м2 перекрытия с подвесным потолком стал меньше 2,2 кН, то по нормам она не удовлетворяла условию звукоизоляции от ударного шума;
  • качество сварных швов из-за их большой протяженности в этих домах неудовлетворительное;
  • применявшаяся конопатка не обеспечивала водонепроницаемости и непромерзаемости швов;
  • наиболее часто разрушался и отслаивался раствор именно в расшивке шва, поскольку поверхность сцепления между раствором и панелями мала;
  • при деформации, неизбежной для данной конструкции домов, раствор отслаивался от панелей и по образующимся в шве тре­щинам в помещения проникали вода и даже холодный воздух;
  • неудачным оказалось соединение навесных наружных панелей;
  • неиндустриальным оказалось изготовление подвесных потолков.

Анализ, проведенный специалистами, показал, что сплошное перекрытие толщиной 10 см на комнату значи­тельно рациональнее, так как нижняя поверхность превращается в чистый потолок и отпадает необходимость в подвесной конструкции.

В совокупности все эти дефекты привели к тому, что строительство домов данной серии было полностью за­прещено.


Перечень жилых домов серии I-335

[править]
АдресЭтажностьГод постройки
Владимировская 1251963
Владимировская 1351965
Владимировская 1451964
Владимировская 1651964
Владимировская 951965
Вокзальная магистраль 1751955
Героев Революции 2351964
Героев Труда 3541962
Героев Труда 3741962
Димитрова проспект 1151967
Димитрова проспект 1351967
Димитрова проспект 951967
Достоевского 351966
Достоевского 551966
Комсомольский проспект 1351968
Кубовая 10141966
Кубовая 9331962
Кубовая 9531962
Кубовая 9741963
Ленина 7351965
Ленина 7751965
Лермонтова 1251964
Механическая 1-я 1351964
Механическая 1-я 251965
Механическая 1-я 351968
Морской проспект 1341961
Морской проспект 941960
Новосёлов 141964
Новосёлов 341963
Панельный переулок 341962
Первомайская 18651967
Сибирская 2851965
Советская 5351964
Степная 2/151966
Сызранская 1041966
Сызранская 841965
Чапаева 241963
Эйхе 9б51965